Пн-Пт с 08:30 - 17:00

Историко-культурные объекты

Мы хотим представить вам Историко-культурные объекты, которые были созданы нашими специалистами. В процессе работы над каждым проектом мы тщательно анализируем и учитываем все требования и пожелания заказчика.
IIP.BY

ВЗГЛЯНИТЕ НА Историко-культурные объекты

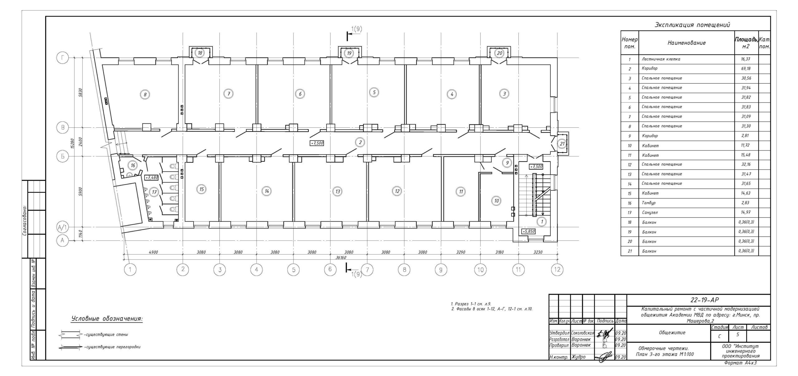
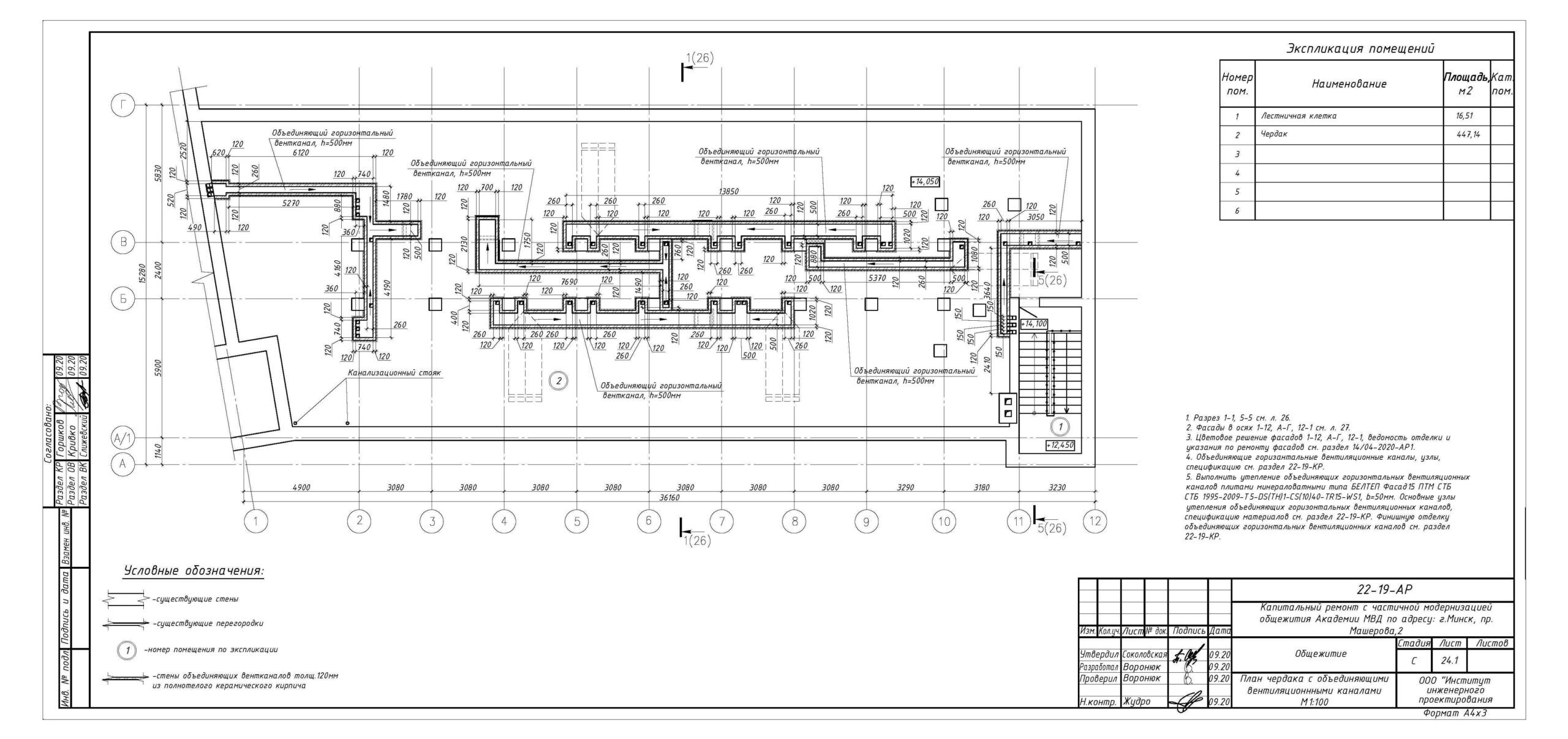
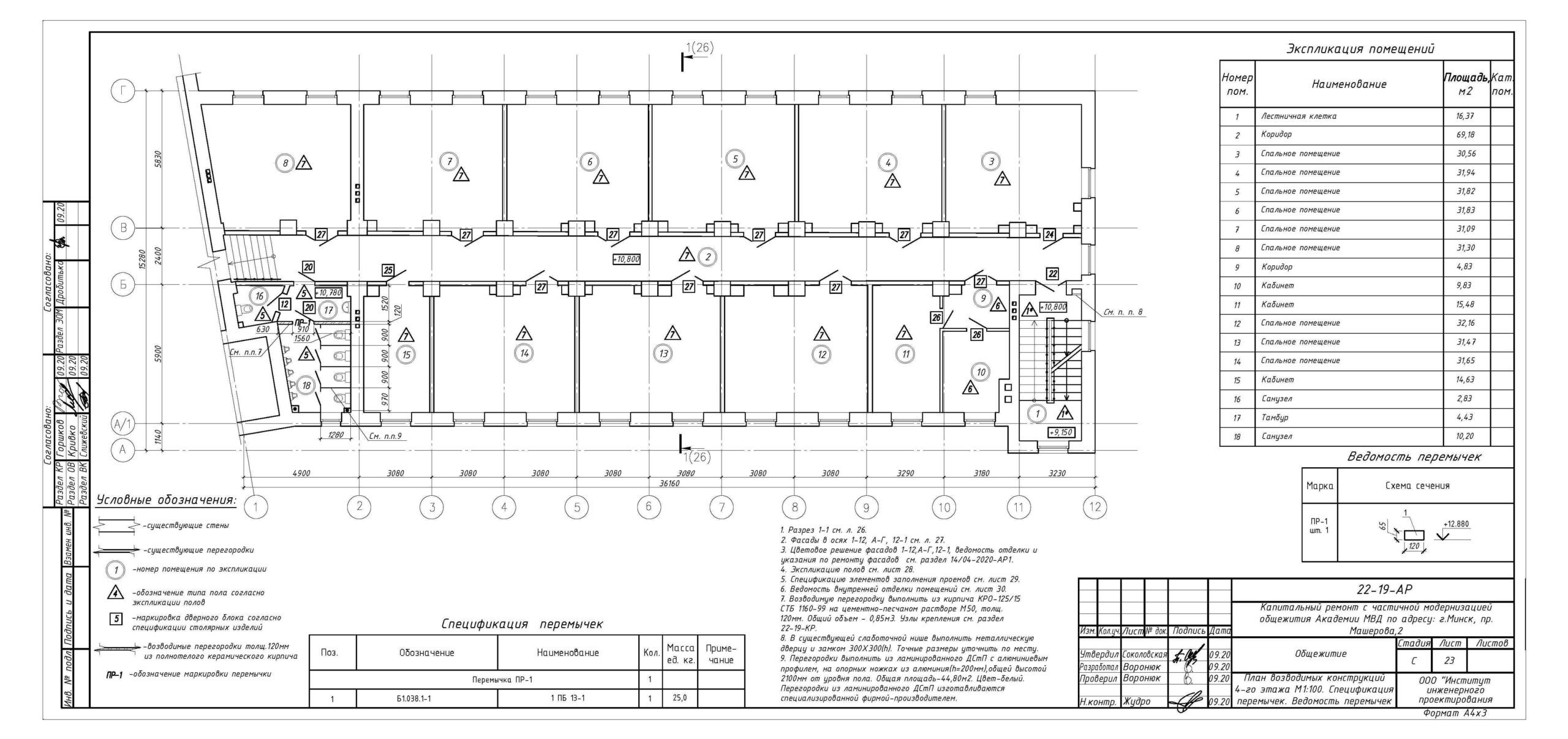
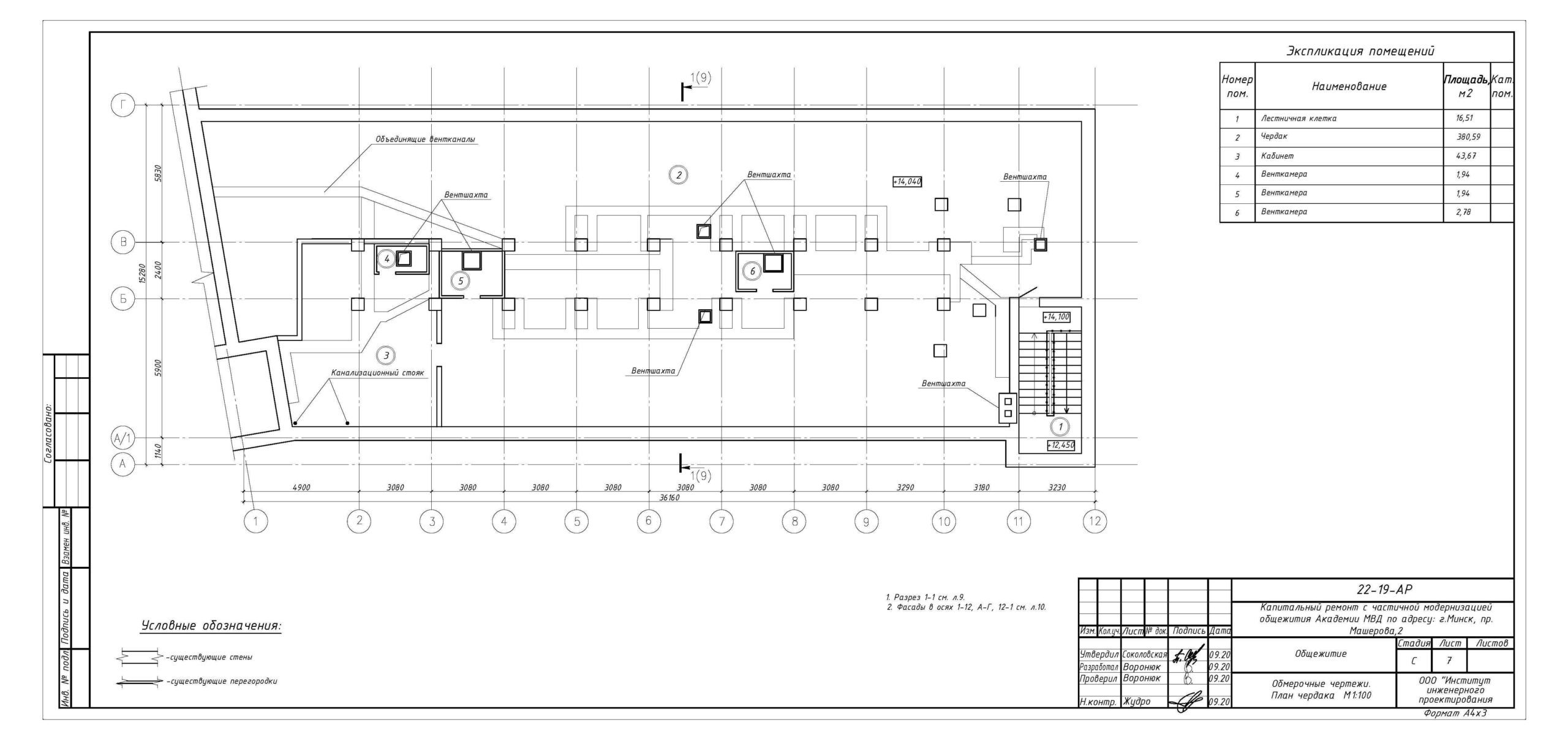
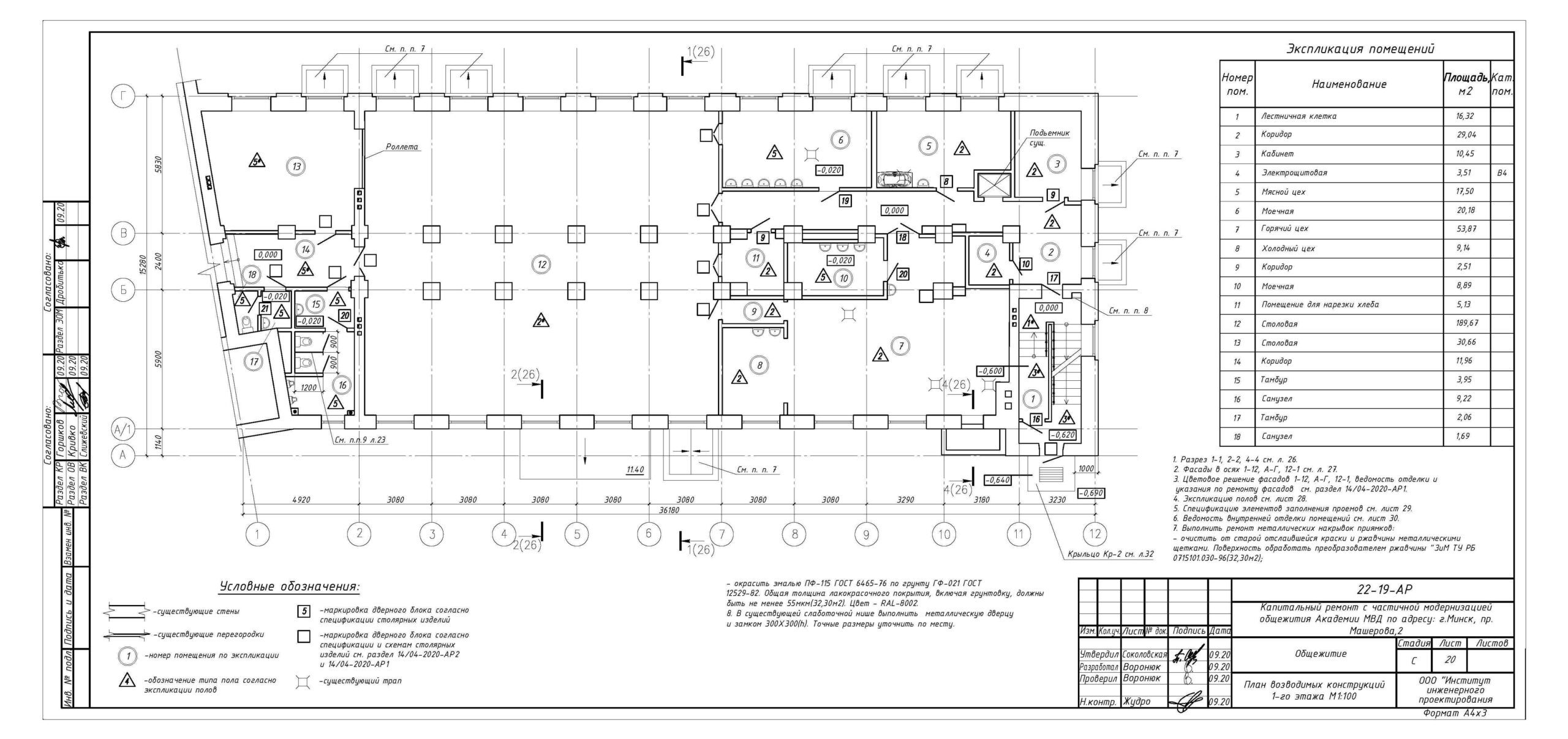
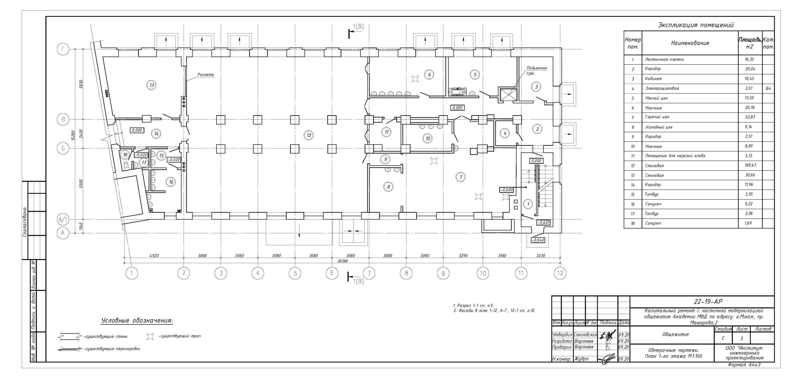
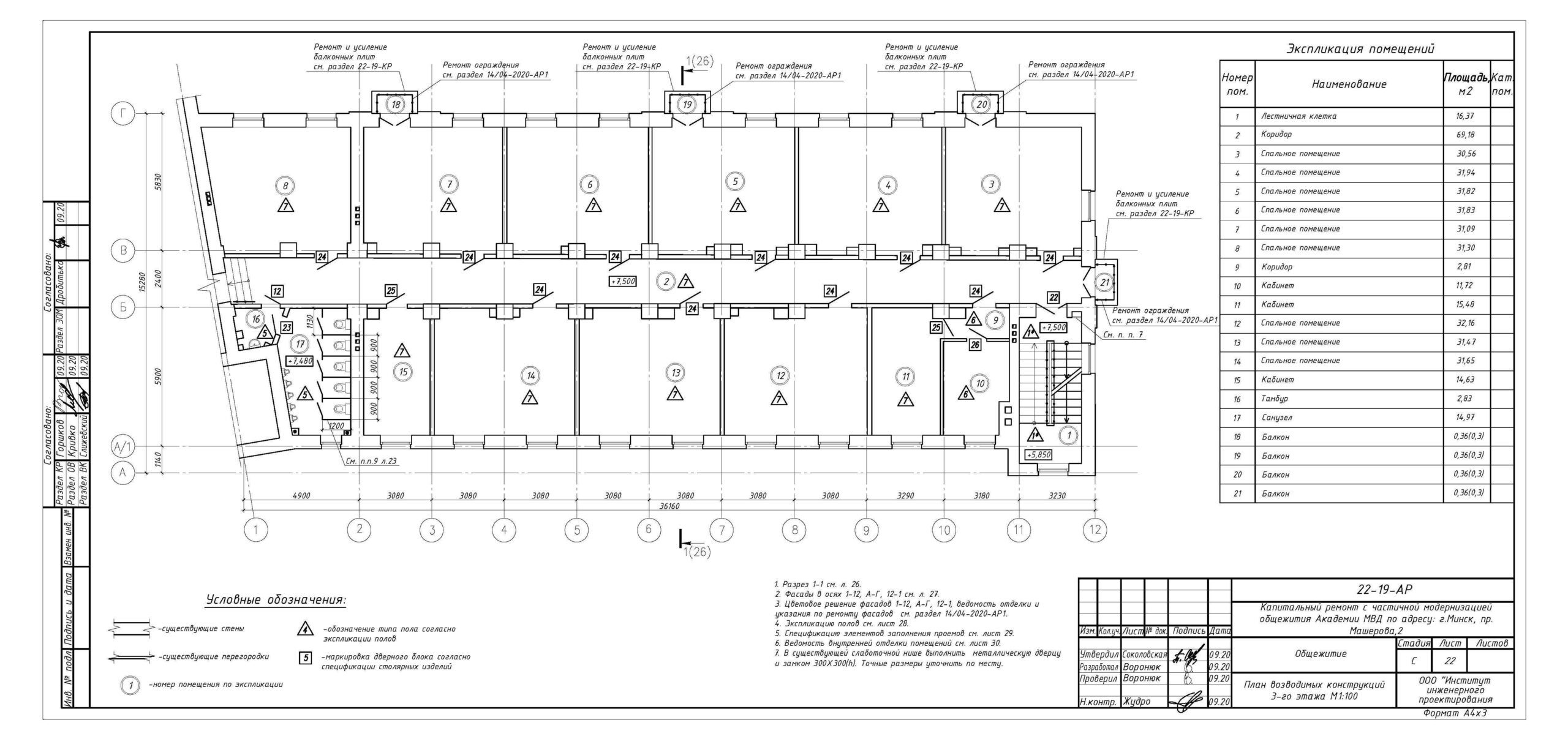
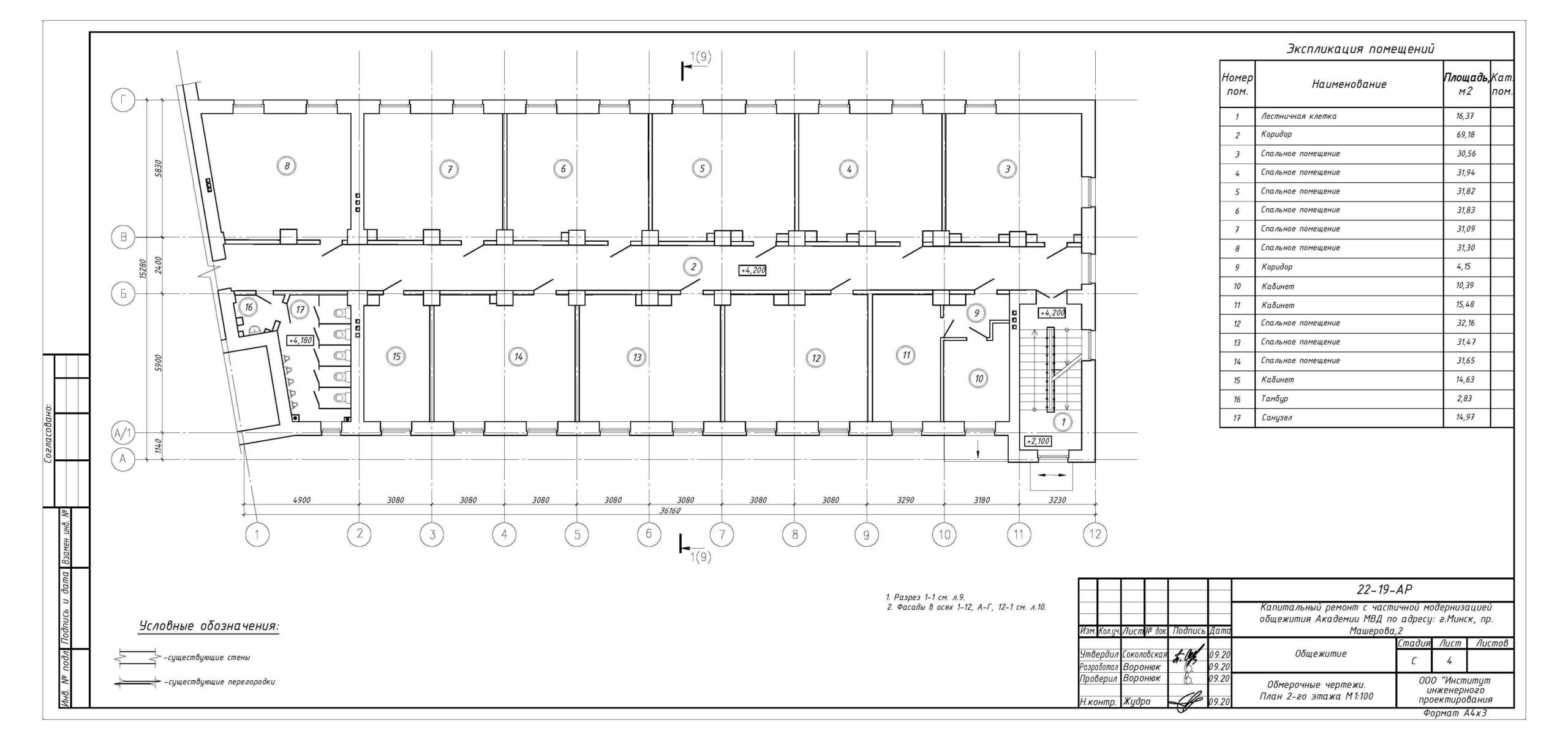
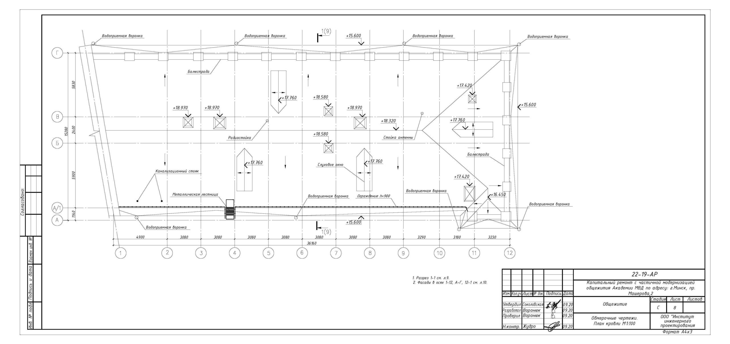
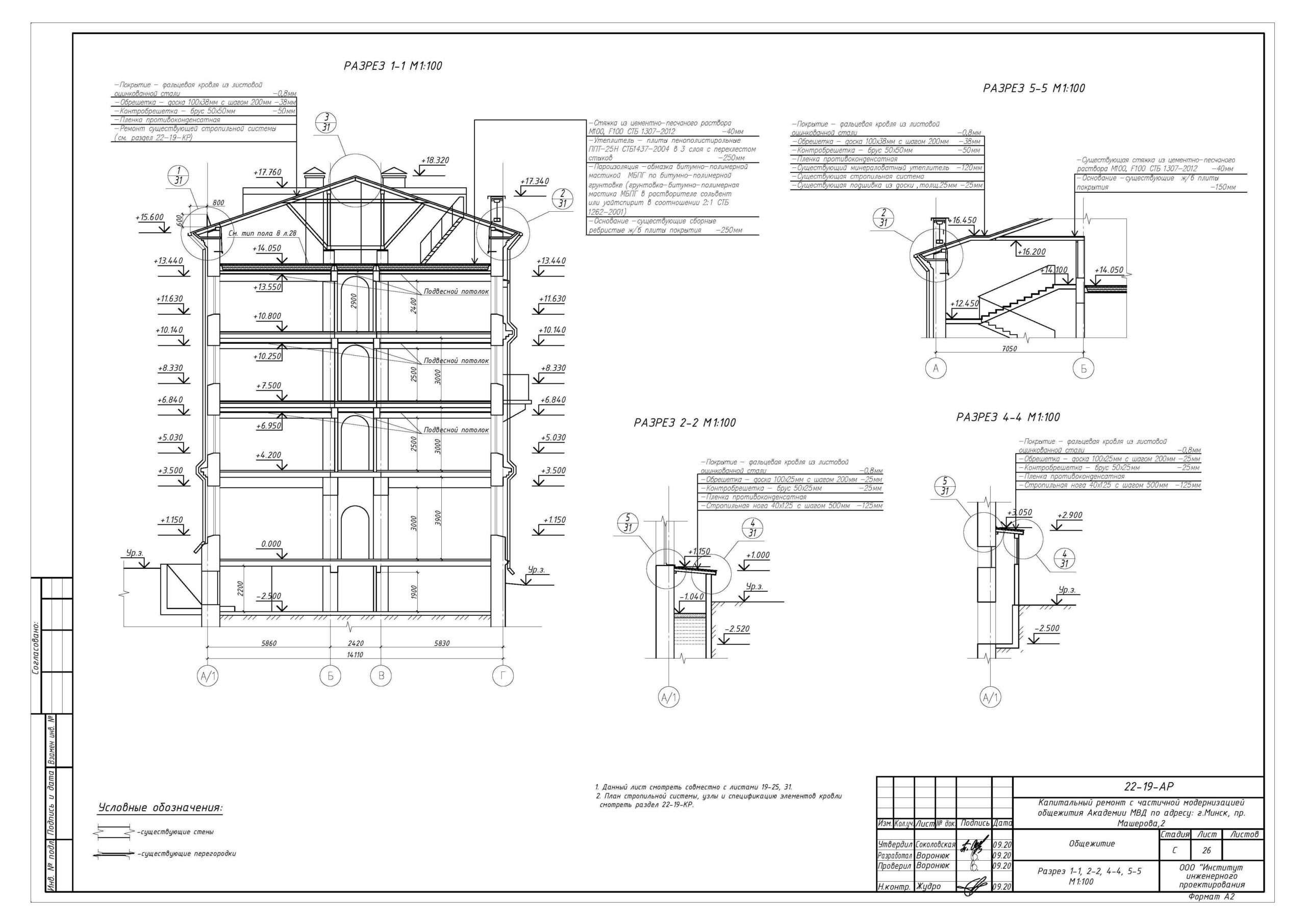
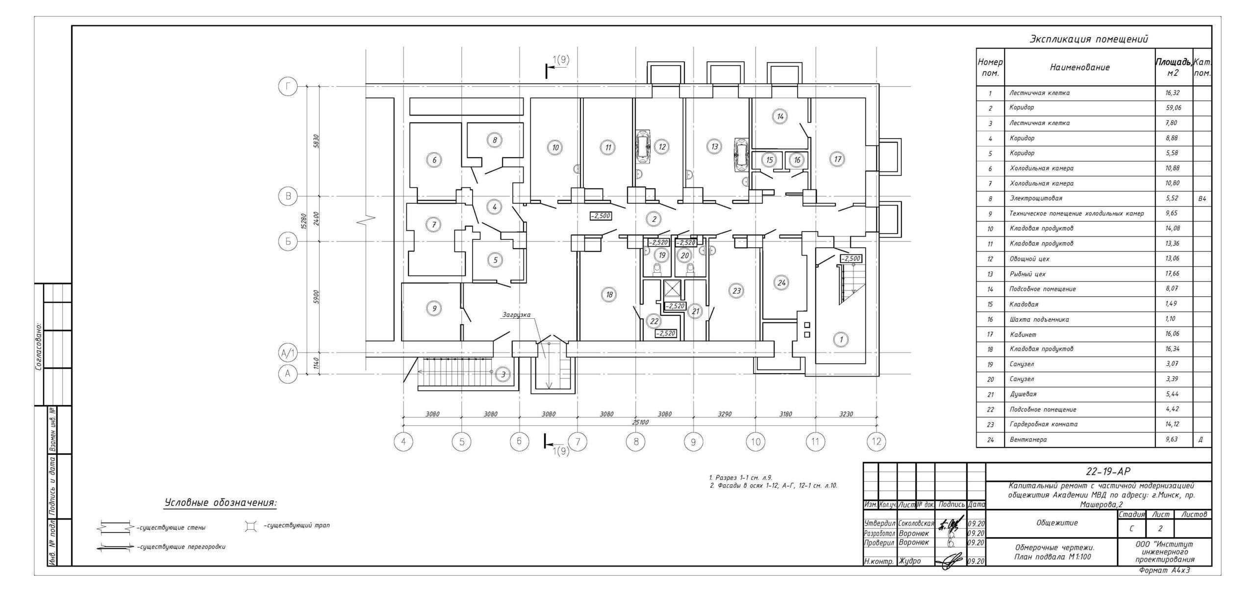
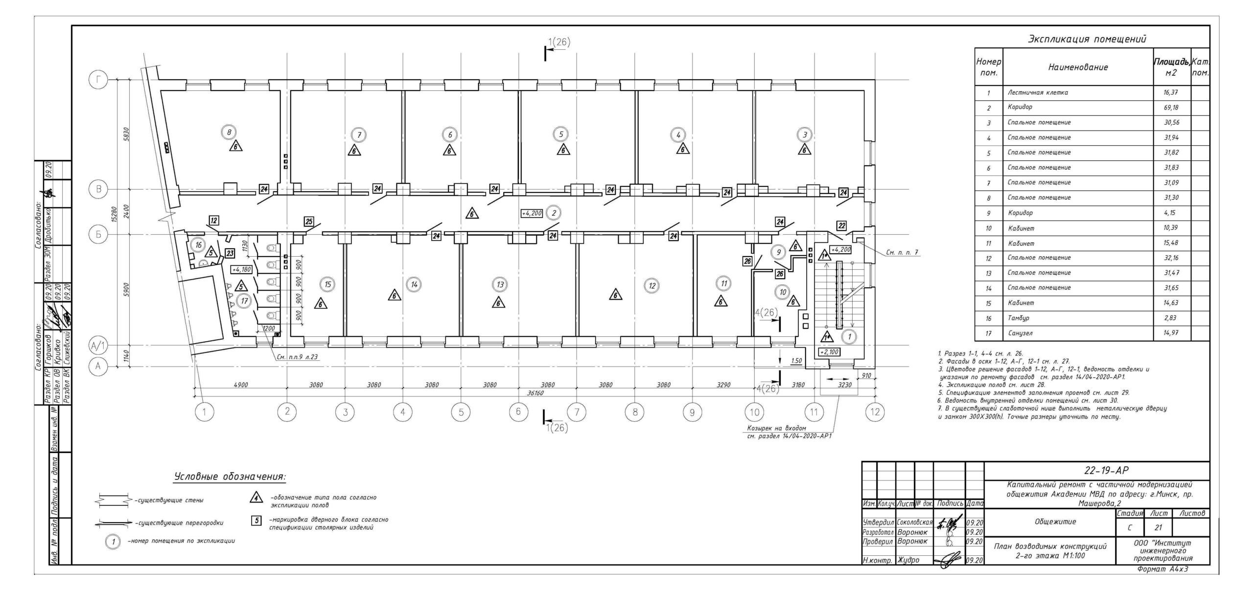
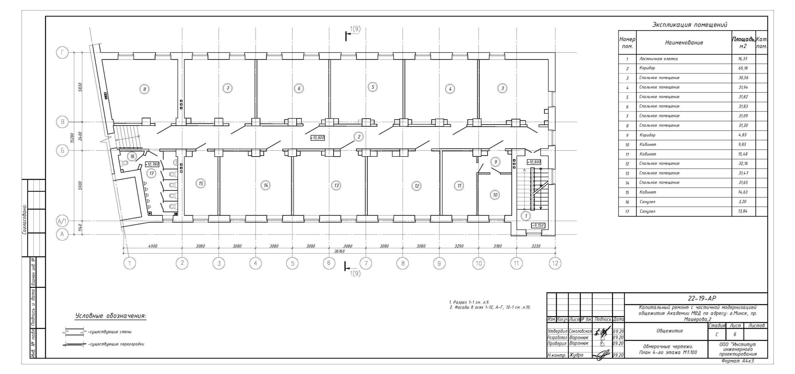
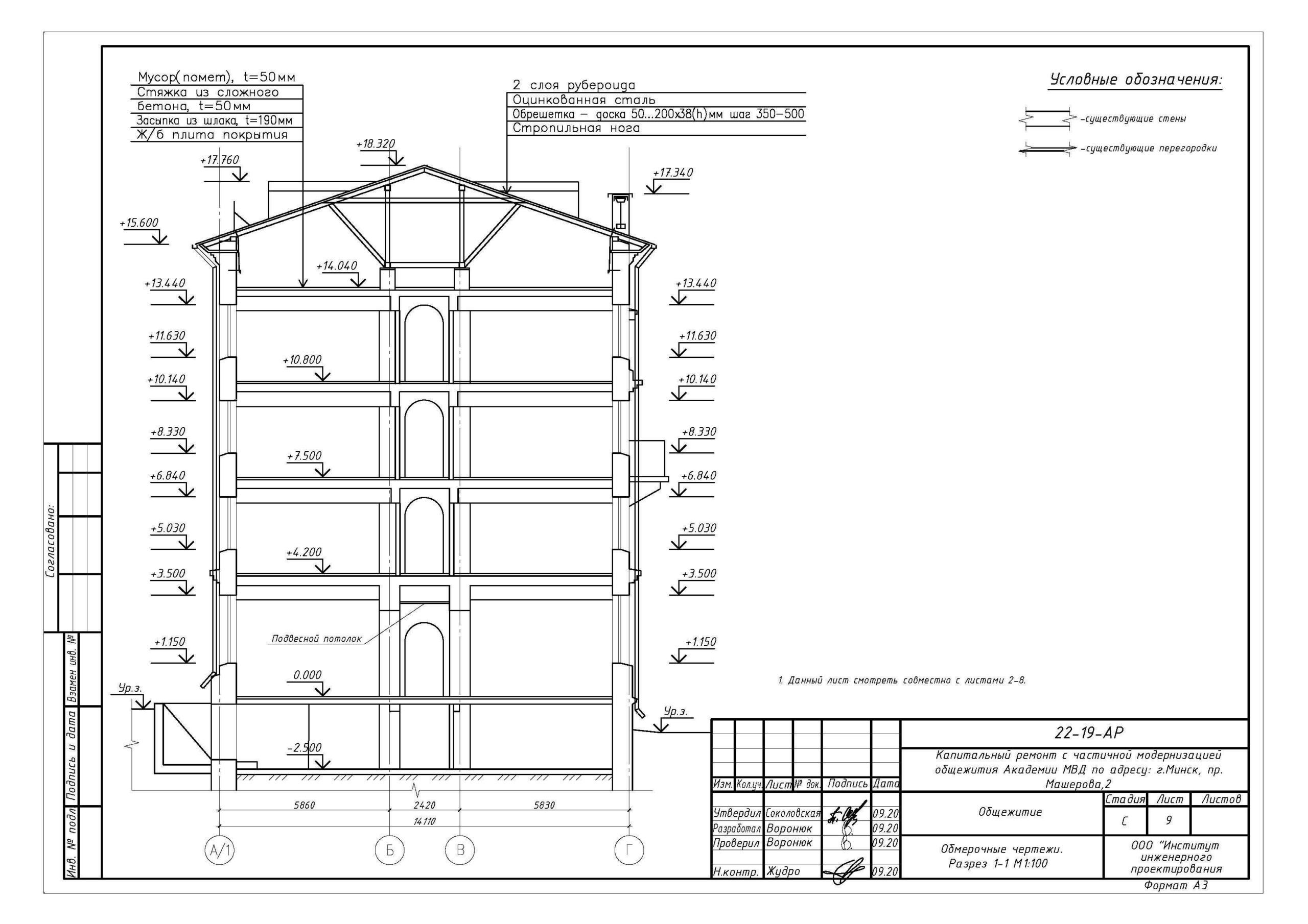
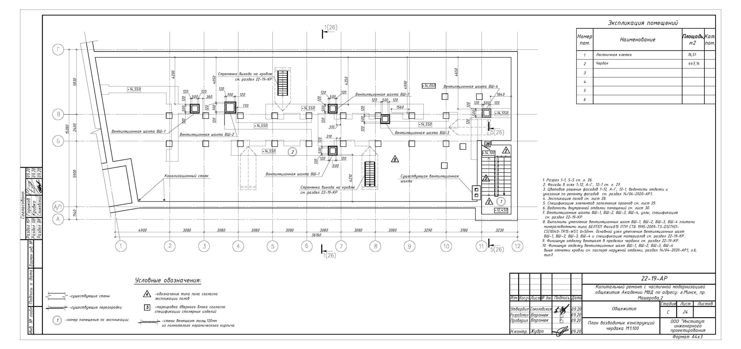
Капитальный ремонт с частичной модернизацией общежития Академии МВД по адресу: г. Минск, пр. Машерова, 2
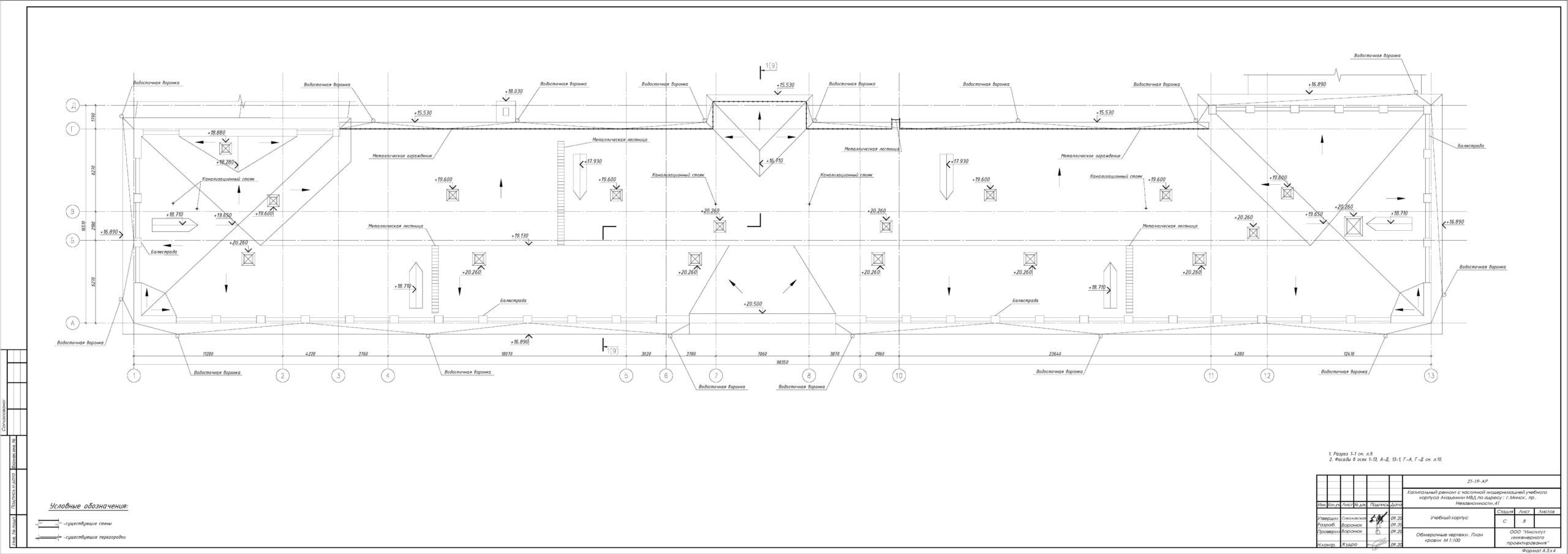
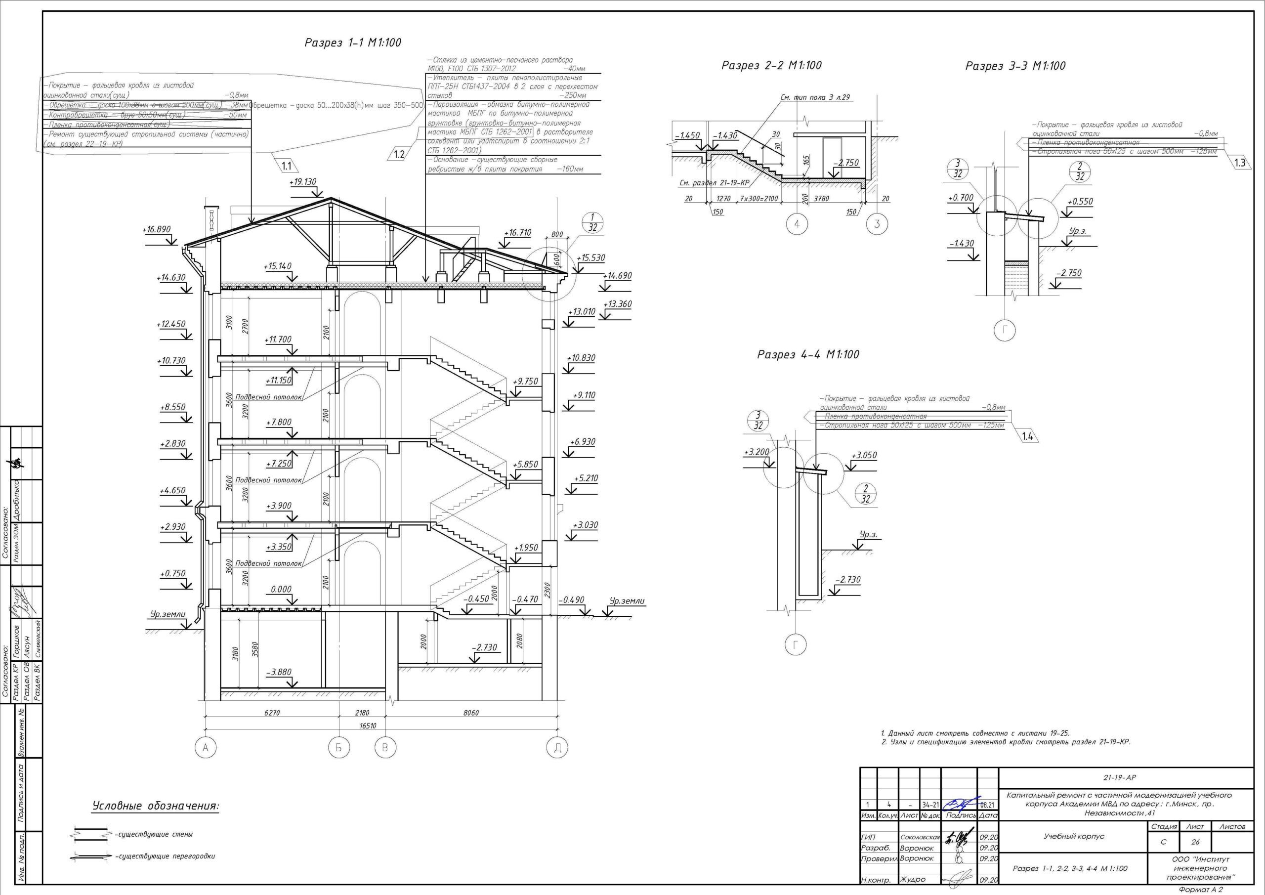
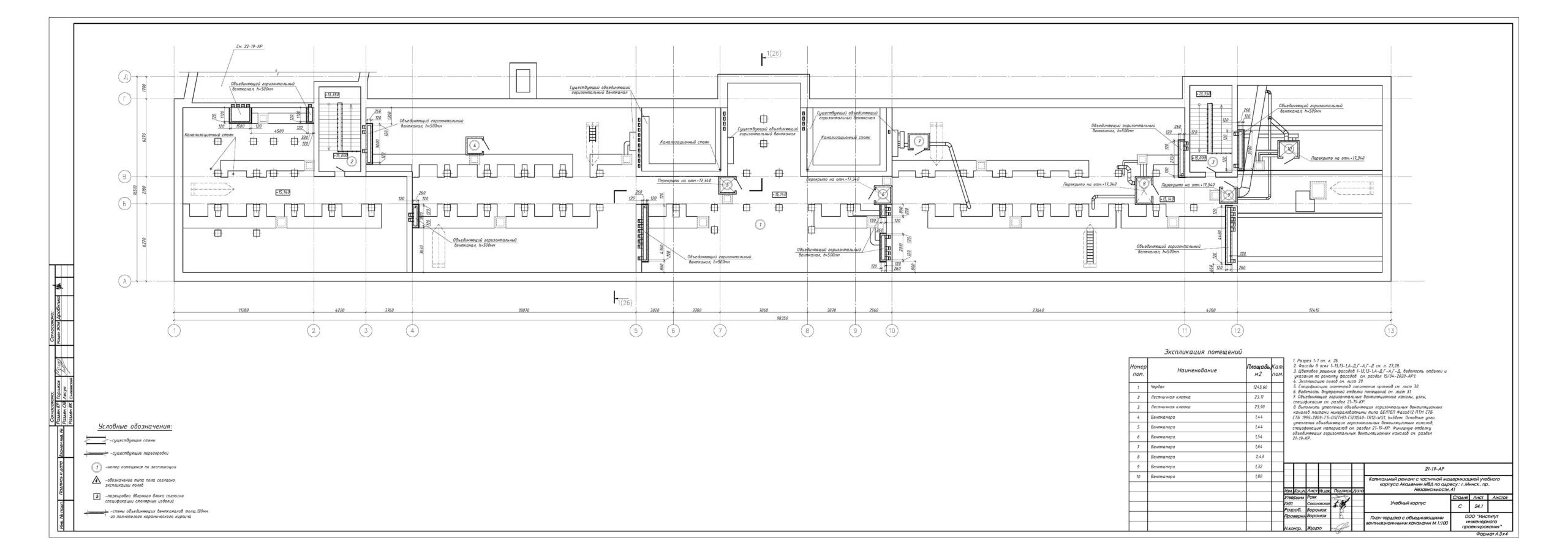
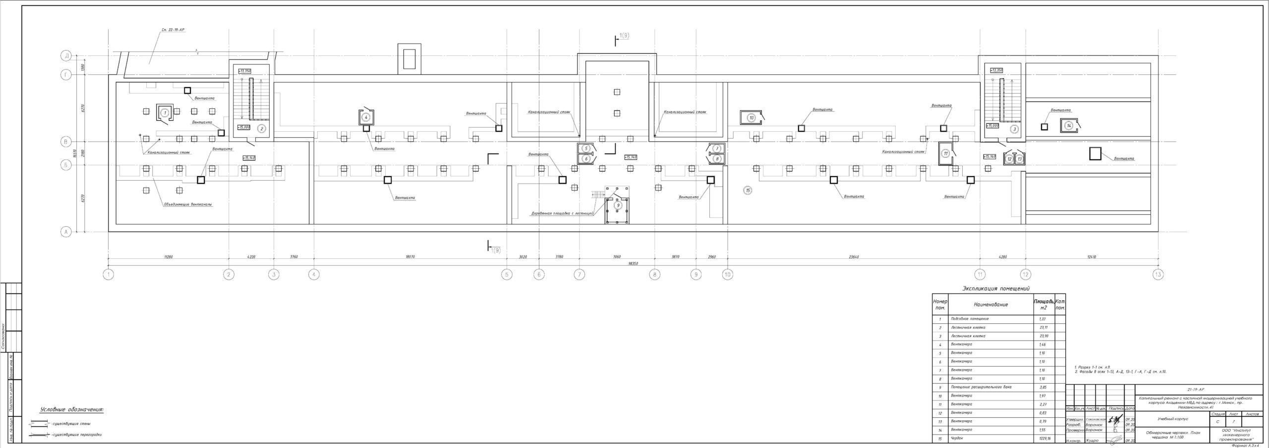
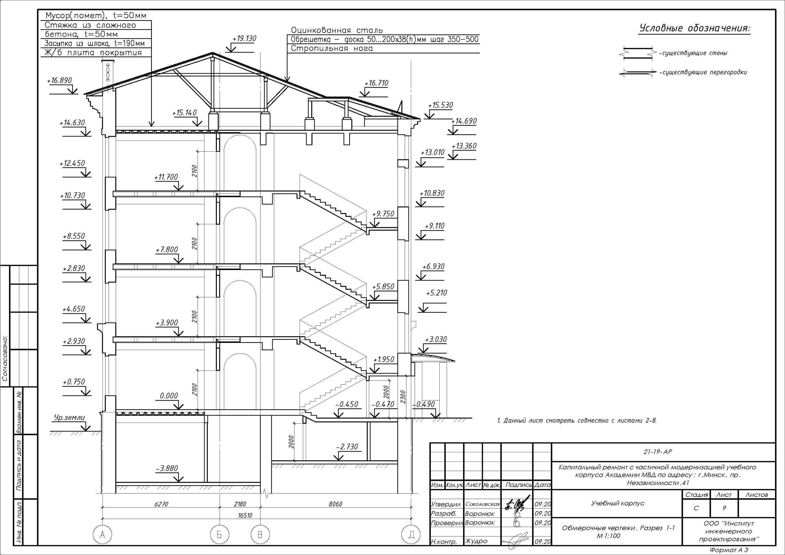
Капитальный ремонт с частичной модернизацией учебного корпуса Академии МВД по адресу: г. Минск, пр. Независимости, 41
Ремонт шпиля по ул. Коммунистической в г. Минске
IIP.BY

СВЯЖИТЕСЬ С НАМИ

Свяжитесь с нами для получения консультации или запроса коммерческого предложения! Мы готовы помочь вам реализовать ваши проекты безопасно и эффективно!
*Мы не передаем Ваши данные третьим лицам
Прокрутить вверх
КОНСУЛЬТАЦИЯ СПЕЦИАЛИСТА

Заполните формы, мы перезвоним Вам в течение 20-ти минут.

*Мы не передаем Ваши данные третьим лицам