Пн-Пт с 08:30 - 17:00

АДМИНИСТРАТИВНЫЕ ЗДАНИЯ

Мы хотим представить вам административные здания, которые были созданы нашими специалистами. В процессе работы над каждым проектом мы тщательно анализируем и учитываем все требования и пожелания заказчика.
IIP.BY

ВЗГЛЯНИТЕ НА АДМИНИСТРАТИВНЫЕ ЗДАНИЯ

Строительство административно-делового центра с охраняемой автостоянкой и паркингом
Реконструкция административного здания в г. Варшаве
Капитальный ремонт с модернизацией административно-хозяйственного здания по пер. Калинина, 10 в г. Минске
Капитальный ремонт с элементами модернизации здания
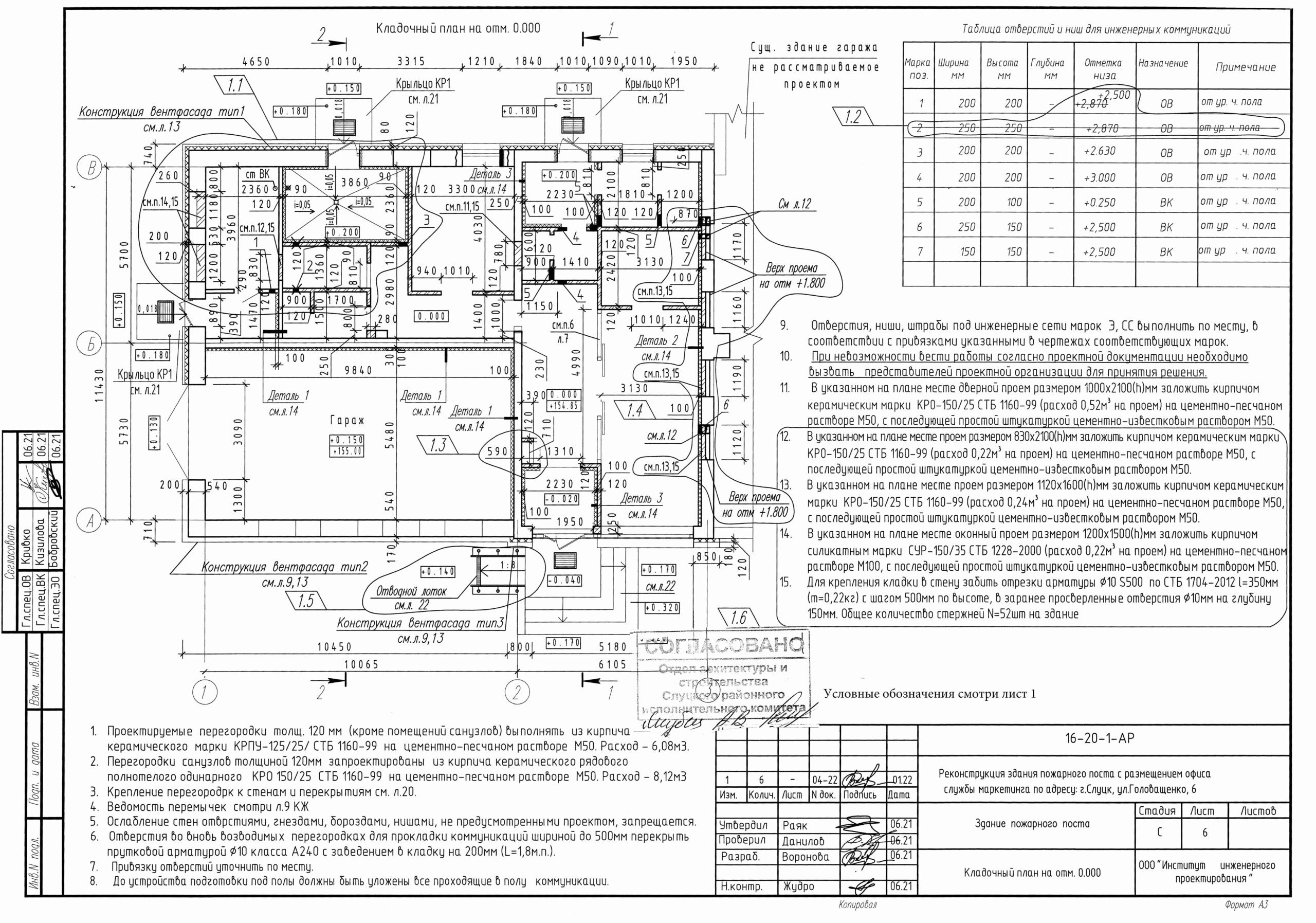
Реконструкция здания пожарного поста с размещением офиса службы маркетинга
Реконструкция административного здания по улице П. Бровки в г. Минске
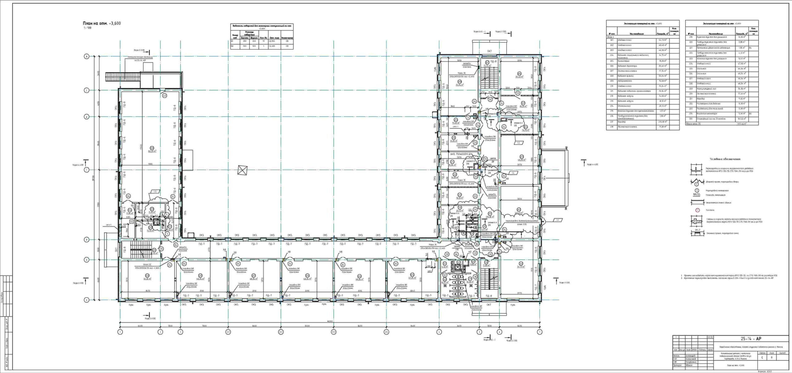
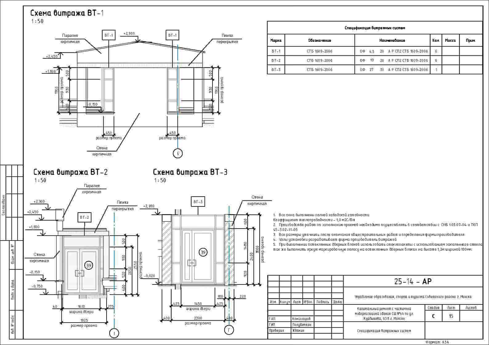
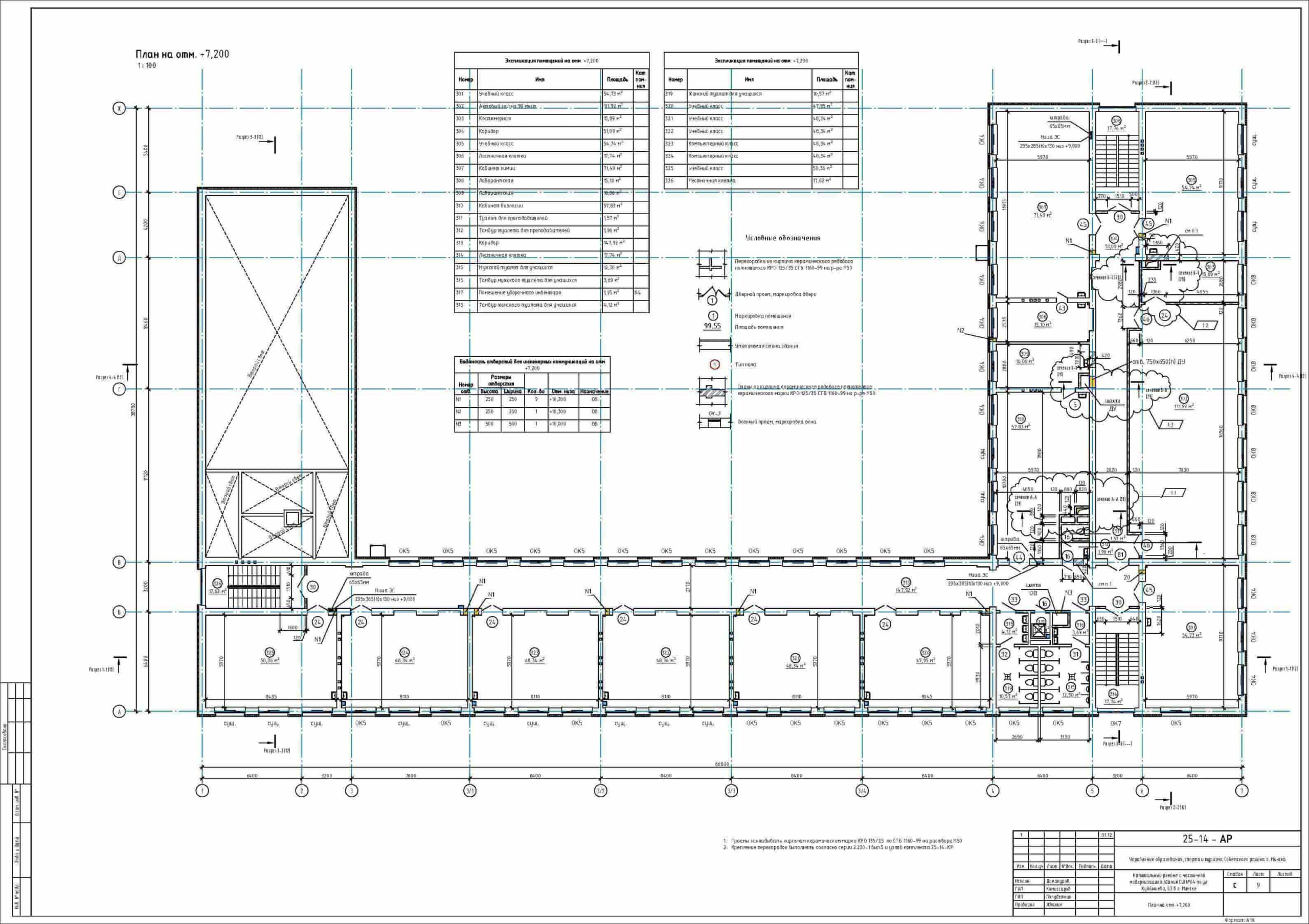
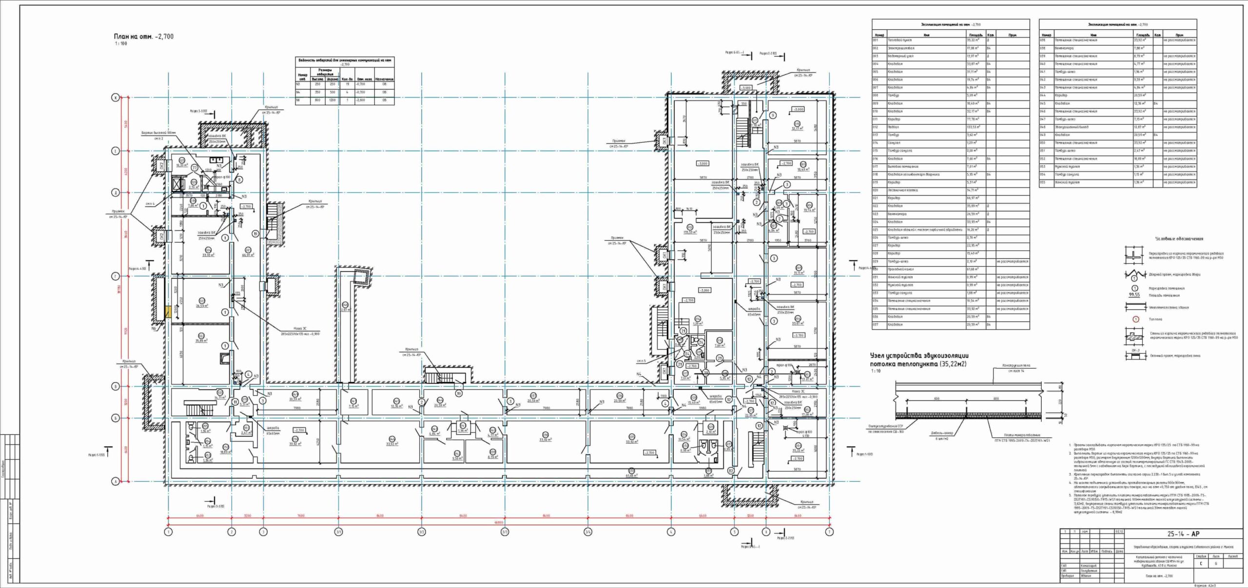
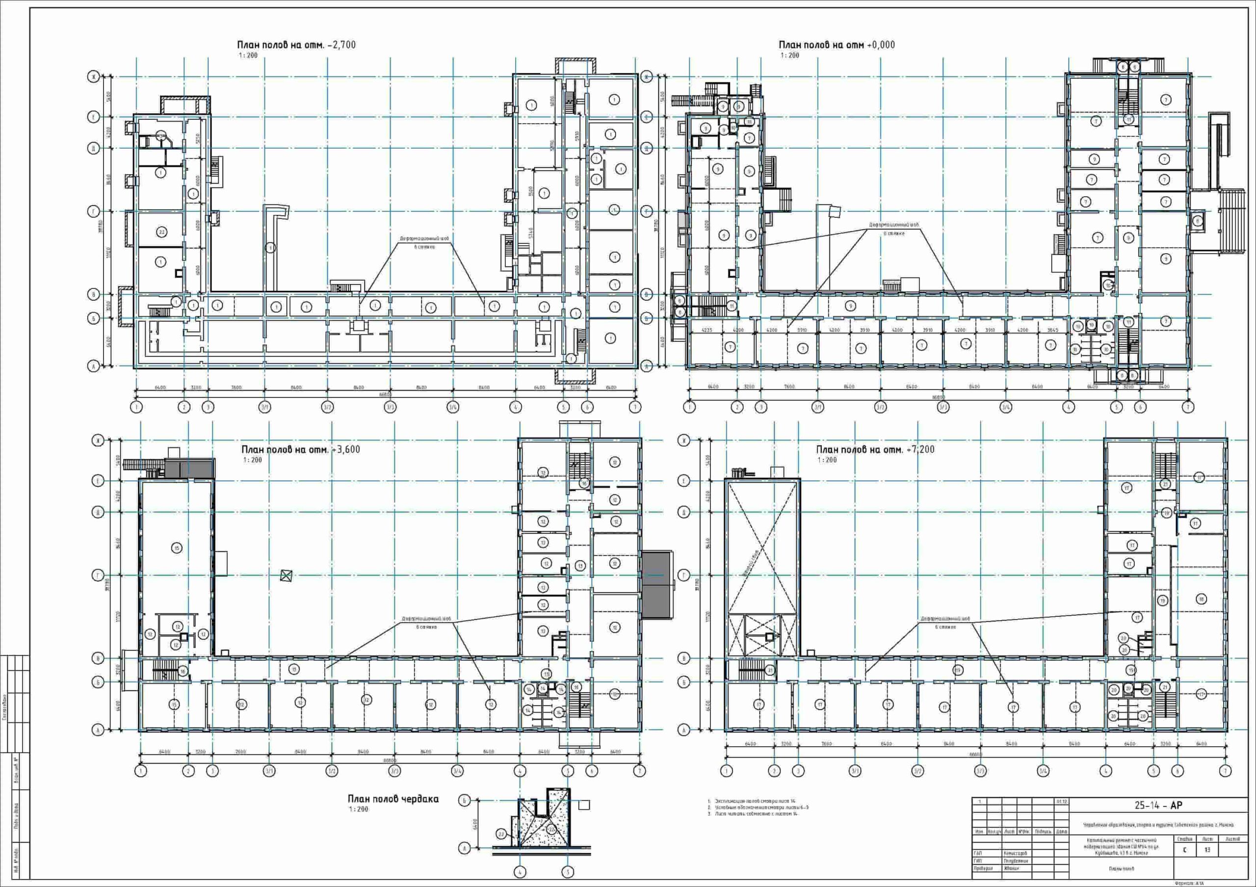
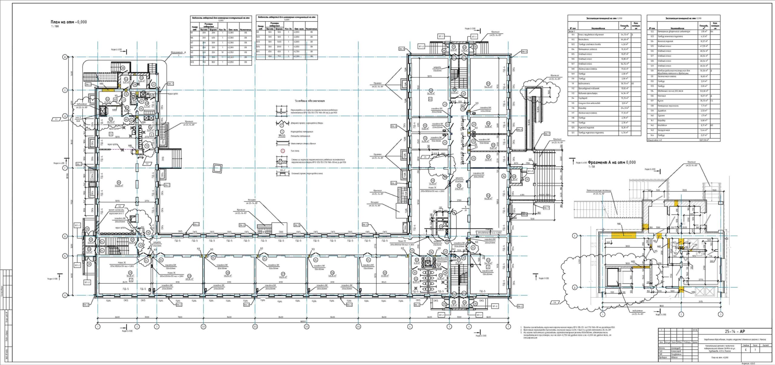
Капитальный ремонт с частичной модернизацией здания СШ №64 по ул. Куйбышева, 63 в г. Минске
Реконструкция здания отделения банка ОАО «Белагропромбанк»
Капитальный ремонт с модернизацией административного здания г. Бобруйск
IIP.BY

СВЯЖИТЕСЬ С НАМИ

Свяжитесь с нами для получения консультации или запроса коммерческого предложения! Мы готовы помочь вам реализовать ваши проекты безопасно и эффективно!
*Мы не передаем Ваши данные третьим лицам
Прокрутить вверх
КОНСУЛЬТАЦИЯ СПЕЦИАЛИСТА

Заполните формы, мы перезвоним Вам в течение 20-ти минут.

*Мы не передаем Ваши данные третьим лицам